Senin, 16 Januari 2012

TERJUAL SEMUA PERUMAHAN GRIYA ARADHANA WIROSABAN DEKAT RSU PUSAT KOTA JOGJA CITY

PERUMAHAN KAPLING SIAP BANGUN (GRIYA ARADHANA WIROSABAN) 3 UNIT TERAKHIR DEKAT RSU WIROSABAN JOGJA SELATAN




















3 KAVLING SIAP BANGUN GRIYA ARADHANA  WIROSABAN
Lokasi : Jl. Sorogenen ke selatan masuk gg. mujair ,umbulharjo yogyakarta
Stock : 3kavling
Jalan lingkungan : konblok lebar 5m, bisa simpangan 2 mobil
Sertifikat : SHM
Kondisi : Kavling Siap Bangun
Lebar muka : 8m
Menghadap : Utara
Luas Tanah : 105m2
Luas Bangunan : 50m2
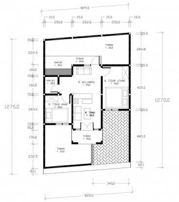
2KT, 1KM, Car Port, R. Tamu, R. Keluarga, Dapur, R. Makan, Tempat Jemuran, Taman Depan dan Taman Belakang luas.
Sumber air bersih : Sumur bor + sanyo + Water torn 500L
Listrik : 1.300watt
Bonus : Kitchen Set panjang 3m, top table granit, washsink dan kompor tanam.

Harga : Rp 310.000.000,- Bisa KPR (harga tidak termasuk pajak, biaya balik nama, biaya notaris dan biaya akad kredit)

DIJUAL tinggal 3 Unit Rumah Siap Bangun type Minimalis di Wirosaban Asri,
# Type 50/105,
# Type 90/136 (hook),
# Sertifikat : SHM, IMB
# Luas Tanah : 105m2, 136m2
# Luas Bangunan : 50m2, 90m2
# Mengahadap Utara

Faslilitas
# 2Kamar Tidur,
# 1Kamar Mandi,
# Car Port,
# Ruang Tamu,
# Ruang Keluarga,
# Dapur,
# Ruang Makan,
# Tempat Jemuran,
# Taman Depan dan Taman Belakang.
# Listrik : 1.300watt,
# Sumber air bersih : Sumur bor + sanyo + Water torn 500,
# Jalan lingkungan : konblok lebar 5m, bisa simpangan 2 mobil. Akses mudah kemana mana.

Harga :
-2 unit 105m2 @ 310jt
-1 unit Hook 136m2 @ 450jt

Desain atau denah bisa menyesukaikan keinginan.
Proses Bangun 3-4 bulan.
Pembayaran: CASH atau Kredit via KPR BANK DP minimal 20%.

PRICE LIST  3 UNIT KAPVING STATUS HUKUM  ( SHM)

Luas tanah (dari barat) Type :      HARGA JUAL                           
 
  105 m2   1lt   50 m2      =  Rp.310.000.000,- ( 3 unit) lebar depan 8  hadap utara
  136  m2  1lt    90 m2     =  Rp.450.000.000,-
Keterangan :






1.Harga dan suku bunga KPR dapat berubah sewaktu-waktu,tanpa
   pemberitahuan terlebih dahulu
2.Tanda Jadi di bayar pada saat pemilihan kavling


3. UTJ  sebesar Rp.5.000.000,- (tidak dikembalikan
    /hangus apabila consumen membatalkan diri )
4. Uang 30% muka dilunasi paling lambat setelah 1 minggu
    dari pembayaran UTJ


5.Harga Jual sudah termasuk : Sertifikat SHM,IMB,

6..Harga Jual Belum termasuk: Pajak Pembeli (BPHTB) -5%
    Dari Harga Jual NJOP,dan Biaya Notaris,Balik nama

PERUMAHAN GRIYA ANANDA DEKAT 3 KAMPUS JOGJA SELATAN






 Dijual perymahan griya ananda  lokasi dekat jalan raya imogiri dekat kota dekat pasar karangkajen 2km, tinggal 2 unit kapling siap bangun , bagus untuk investasi depan
bisa kpr /cash bertahap